Humber River Centre
The Town of Caledon’s new Humber River Centre is a state-of-the-art community hub in the heart of downtown Bolton. The Bolton Fire Station Renovation project transformed the 10,000 sq.ft. space into a sustainable, accessible facility designed to house community events, arts and cultural initiatives, business support services, coworking space and more. An official opening of the facility is planned for Q1 2024.
Business Support Services - Share Your Thoughts!
The Town is looking for feedback from current and aspiring business owners to understand programming needs for the new space. Share your thoughts on the tools, services, and events you needContinue reading
The Town of Caledon’s new Humber River Centre is a state-of-the-art community hub in the heart of downtown Bolton. The Bolton Fire Station Renovation project transformed the 10,000 sq.ft. space into a sustainable, accessible facility designed to house community events, arts and cultural initiatives, business support services, coworking space and more. An official opening of the facility is planned for Q1 2024.
Business Support Services - Share Your Thoughts!
The Town is looking for feedback from current and aspiring business owners to understand programming needs for the new space. Share your thoughts on the tools, services, and events you need to make your business dreams a reality.
- Online survey
Open Friday, December 8 to Monday, January 29
Participate in this short survey and tell us what you need to support your business goals in 2024.
- In-person focus group
Wednesday, January 24, 8 – 9 am (doors open at 7:30 am)
Humber River Centre, Multi-purpose Room
Join staff and facilitators in the new facility to share your ideas and help set the vision for business support services in the space. The focus group is open to current and aspiring business owners and local business support service providers. Coffee and light refreshments will be provided.
- One-on-one interviews
Unable to attend the in-person focus group? Email business@caledon.ca to request an in-person or phone interview to share your thoughts.
The old Bolton Fire Station has a new name! As voted on by Council in March 2022, this facility will now be renamed to be the Humber River Centre.
The Humber River Centre renovations will begin in April 2022, with the expected opening date to be in Fall 2023. The extensive renovation to the 10,000 square feet fire and paramedic building, will result in the creation of a unique community space in the heart of Bolton.
This project will:
- Make the building accessible to the public;
- Explore how to make the building environmentally friendly;
- Create a neighbourhood resource centre;
- Accommodate and foster a year-round farmers market;
- Use part of the building as a pilot project for business startups, featuring shared work space and meeting rooms;
- Provide as a central location for events, programs and services; and
- Provide public washrooms.
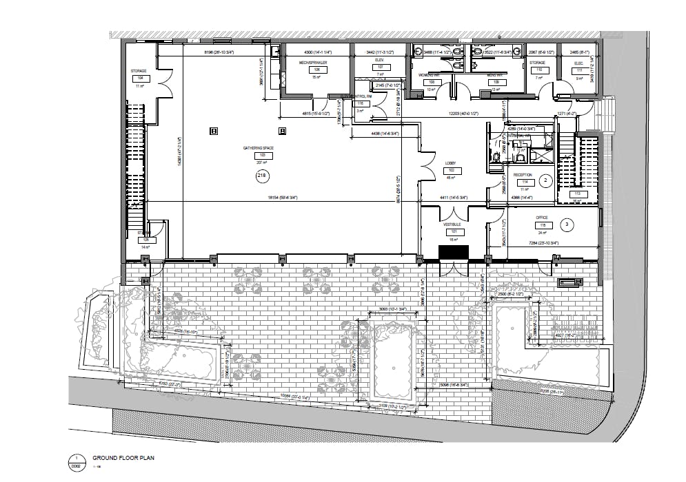
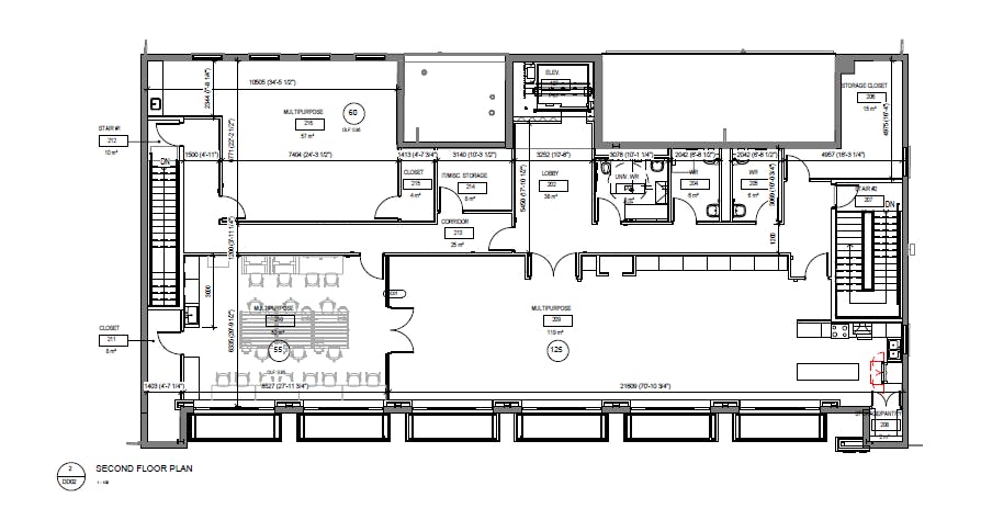
On this page you will find reference drawings that illustrate the intended look and feel of the community space. Each room includes the details on the occupancy, square footage and amenities to be provided. Please note these are drawings and the final result may vary.
On January 24, 2023, Brampton East MP Maninder Sidhu, Parliamentary Secretary to the Minister of Foreign Affairs, and Caledon Mayor Annette Groves announced federal funding of up to $7.7 million to revitalize the Old Bolton Fire Hall. The funding will support sustainable improvements and will include installing LED lighting, air source heat pumps and energy recovery ventilators, more insulative windows and doors, increased roof insulation, on-demand electric water heaters and a building automation system. These enhancements are expected to reduce greenhouse gas emissions by 29.5 tonnes per year and fuel consumption by 56.2 per cent. To learn more about the Federal investment and the Green and Inclusive Community Buildings program, please read the media release.
Have questions about the space? Check out our Q&A as we might have already answered your question.
This project is funded in part by the Government of Canada.
-
Humber River Centre Q&A
Share Humber River Centre Q&A on Facebook Share Humber River Centre Q&A on Twitter Share Humber River Centre Q&A on Linkedin Email Humber River Centre Q&A linkWill the space be accessible?
Yes! The space will be renovated to include accessible entrances and an elevator.
What kinds of programs will happen in the space?
The space will be used to create a neighbourhood resource centre, accommodate and foster a year-round farmers market and use part of the building as a pilot project for business startups, shared work space and makerspace.
Can I book the space for my group/ club?
Once the building is complete, the process to book the facility for one-time single or occasional use will follow the same process as other Town of Caledon inventory spaces. This website provides more information on how to book a facility https://www.caledon.ca/en/living-here/rent-a-facility.aspx
What were the results of the "How do you see the Humber River Centre being used?" survey?
The results indicated that the community is looking for primarily group classes for adult education and crafting while looking for programming equipment directed at digital fabrication tools, video and audio production use and space for technology. The community is looking for services geared towards entrepreneur and small business services as well as a space for a year round farmers market. All of the survey results indicate that the space will meet the needs of the community.
Will the space be accessible?
Yes! The space will be renovated to include accessible entrances and an elevator.
What kinds of programs will happen in the space?
The space will be used to create a neighbourhood resource centre, accommodate and foster a year-round farmers market and use part of the building as a pilot project for business startups, shared work space and makerspace.
Can I book the space for my group/ club?
Once the building is complete, the process to book the facility for one-time single or occasional use will follow the same process as other Town of Caledon inventory spaces. This website provides more information on how to book a facility https://www.caledon.ca/en/living-here/rent-a-facility.aspx
What were the results of the "How do you see the Humber River Centre being used?" survey?
The results indicated that the community is looking for primarily group classes for adult education and crafting while looking for programming equipment directed at digital fabrication tools, video and audio production use and space for technology. The community is looking for services geared towards entrepreneur and small business services as well as a space for a year round farmers market. All of the survey results indicate that the space will meet the needs of the community.
Who's Listening
-
Senior Economic Development Officer
SDEmail sandra.dolson@caledon.ca
Signup Banner
Related projects
Live Projects
Notice of Collection
All comments and information provided become part of the consultation process and are being collected to assist the Town of Caledon in making decisions. All submissions will become part of the public record files for this matter. Personal information collected is under the authority of the Municipal Act, 2001 and in compliance with the Municipal Freedom of Information and Protection of Privacy Act, R.S.O. 1990.

